Garage automobile et showroom

Construction d'un garage automobile et showroom pour Amag SA à La Tour-de-Trême

Maître d’ouvrage

Amag Automobil und Motoren AG

Réalisation

2022 – 2023

Prestations

Mandat complet

Situation

Le bâtiment est construit sur une parcelle irrégulière, stratégiquement située au carrefour desservant la vallée de la Jogne et celle de l’Intyamon, au sud de la Tour-de-Trême. Son emplacement et sa topographie permettent une bonne visibilité du volume. Plusieurs accès ont été créés pour le confort de la clientèle permettant également une séparation des flux au quotidien (visiteurs/personnel). Pour sublimer cette implantation, un dégagement visuel sur les Préalpes et le Moléson est offert comme cadre tant pour les gens qui y travaillent que pour les visiteurs.

Programme

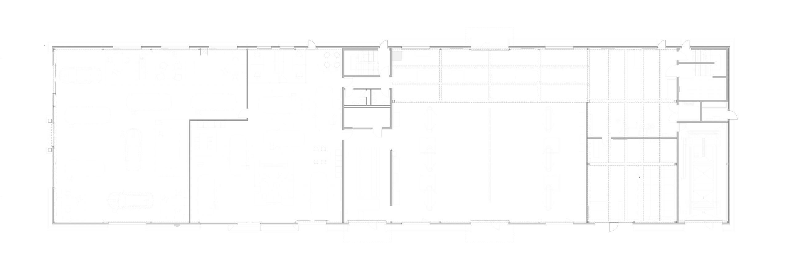
Particulièrement dédié à la vente de véhicules utilitaires pour les enseignes Skoda, Seat et Cupra, le programme du bâtiment prend place dans un volume allongé composé de 3 zones distinctes : le showroom (vente), l’atelier (technique) et la zone d’agrégat (magasin/lavage). A l’étage, on retrouve d’autres espaces comme les locaux techniques (chauffage, froid, électricité), les locaux sociaux (vestiaires et cafétéria) ainsi que le stockage de pneus. Il permet une liaison directe avec le magasin et la zone d’agrégat laissant amplement libre le rez-de-chaussée pour l’exploitation.

Concept

La conception du bâtiment part d’un principe de « modules » défini par une trame qui permet la répétition d’éléments en fonction des surfaces nécessaires. Chaque partie a été conçue avec un rythme donné par une structure qui change de dimension à chaque transition. Les différents programmes sont placés par ordre d’importance de visibilité : les showrooms à l’est sont mis en évidence par leur proximité à l’accès principal tandis que la zone de lavage, plutôt technique et en lien avec les activités mécaniques, termine le bâtiment à l’autre extrémité. Les ateliers occupent une position centrale dans cet ensemble et permettent la liaison entre les différents programmes aux extrémités.

 

Photo extérieur 1
Photo extérieur 2
Photo intérieur 2
Plan rez-de-chaussée avec situation
Plan rez-de-chaussée avec situation